01
DAS OBJEKT
Key Facts - Warenhaus
- zentrale Lage mit hoher Frequenz
- ca. 18.500 m² vermietbare Fläche auf 5 Ebenen
- davon 4 mal ca. 3.000 m² Verkaufsfläche
- rückwärtige LKW-Anlieferung
- zwei Personenaufzüge & drei Lastenaufzüge für Komfort und Logistik

MODERNE &
FLEXIBLE FLÄCHEN
MODERNE &
FLEXIBLE FLÄCHEN

Das Objekt bietet die größten zusammenhängenden Einzelhandelsflächen der Flensburger Innenstadt.
Großzügige Sichtachsen und natürliches Tageslicht schaffen ein einladendes Einkaufserlebnis. Die Schaufenster machen die Verkaufsfläche von außen erlebbar. Die 24-Stunden-Anlieferung ist über einen zentralen Ladehof mit drei Lastenzügen möglich.
BEQUEM ANKOMMEN, ENTSPANNT EINKAUFEN
Für die Anreise mit dem PKW stehen im benachbarten Parkhaus rund 490 Parkplätze zur Verfügung. Die Parkplätze sind direkt an das Warenhaus angebunden.
Holm7 ist hervorragend an den öffentlichen Nahverkehr angebunden – der Zentrale Omnibusbahnhof (ZOB) sowie der Stadthafen befinden sich in unmittelbarer Nähe. Dank direkter Anbindung an das Radwegenetz lässt sich Holm7 auch sehr gut mit dem Fahrrad erreichen.
ÖPNV
in direkter Nähe
Radfahrnetz
direkt in der Nähe
Verkaufsfläche
4 Ebenen mit je
ca. 3000 m²
Vermietbare Fläche
ca. 18.500 m²
Video
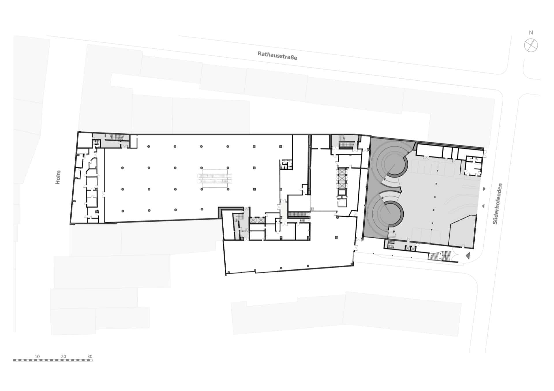
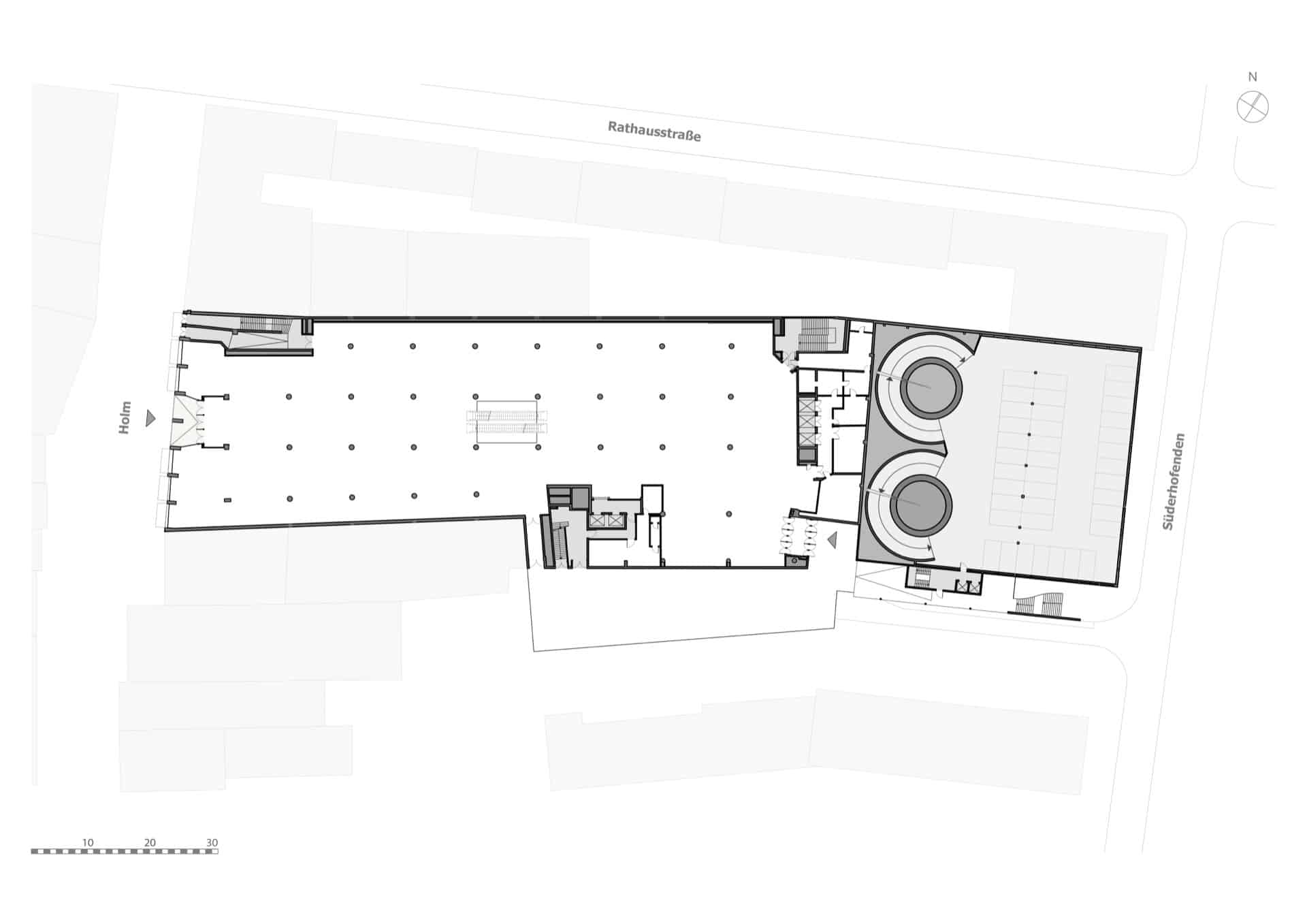
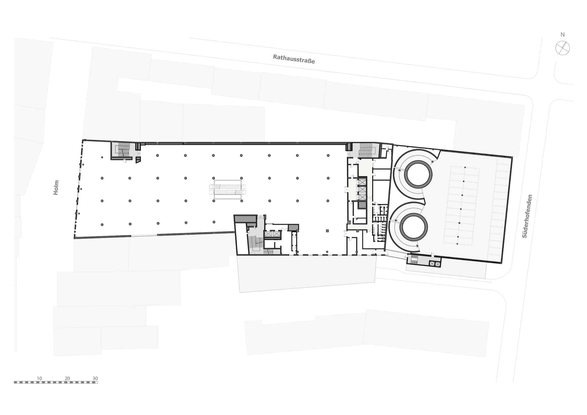
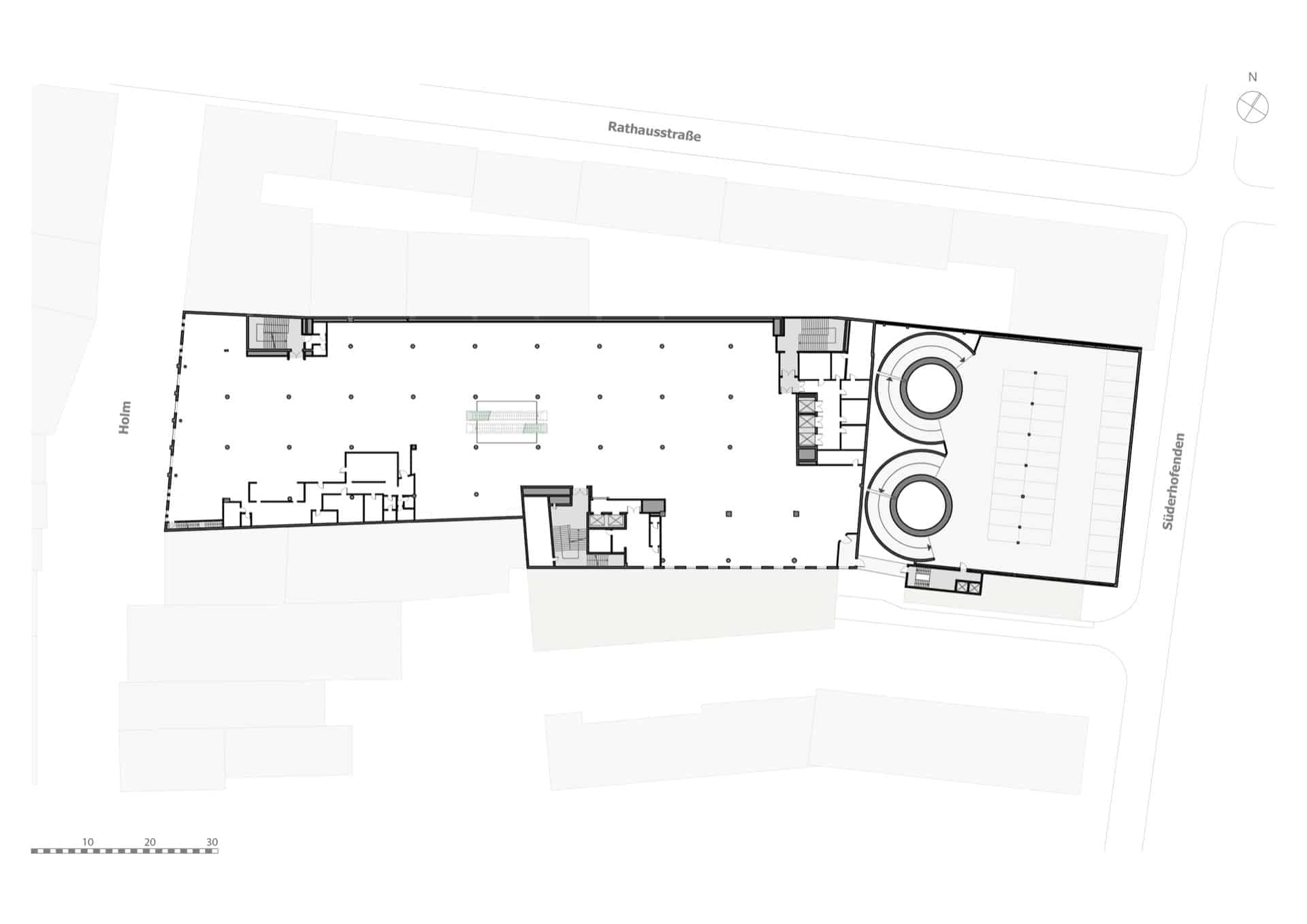
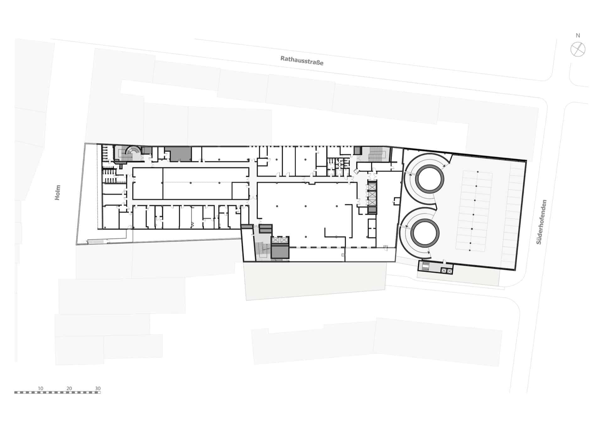
AKTUELLER BESTAND
LÄNGSSCHNITT

Hinweis: Das angrenzende Parkhaus ist nicht Bestandteil der Mietfläche und gehört nicht zum Objekt.
Holm

Süderhofenden
Grundrisse







Der Energieausweis ist vor Ort einsehbar.
DER ZENTRALE STANDORT
KEY FACTS MIKROLAGE
- Top-Standort an Flensburgs 1A-Lage Holm
- Sehr attraktiver Branchenmix mit internationalen und nationalen Retail-Konzepten
- Komplementäre Ergänzung durch leistungsstarke lokale Retailer
- Der Holm verbindet die touristischen Highlights der Stadt
- Hervorragende Erreichbarkeit mit dem ÖPNV und PKW
ERREICHBARKEIT IN KÜRZE
- Hauptbahnhof mit Anbindung an das dänische Schnellbahnnetz: gut erreichbar mit dem Bus oder in ca. 20 Minuten zu Fuß
- Gesicherte Radwege führen zum Objekt
- Sehr gepflegte Fußgängerzone
- Zentraler Busbahnhof mit dänischen und deutschen Destinationen direkt angrenzend, mit eigenem Zugang (Treppe und Personenaufzug)
- Bundesstraßen B 199 und B 200 umranden Flensburg, ein Zubringer zur B 199 ist unmittelbar aus dem Parkhaus erreichbar
- Autobahn A7 (Hamburg – Aarhus/Dänemark) erreichbar in weniger als 15 Minuten
- Hamburg ist ca. 160 km und Aarhus in Dänemark etwa 190 km entfernt
MIKROLAGE
DIE LAGE IM DETAIL




Der Holm ist Flensburgs 1A-Adresse mit einem starkem Branchenmix aus internationalen Marken, lokalen Händlern, Gastronomie und steigenden Besucherzahlen.
Die Große Straße liegt in direkter Nachbarschaft und bildet gemeinsam mit der rund 10 Gehminuten entfernten Roten Straße ein beliebtes Ziel für Touristinnen und Touristen. Zusammen mit dem Holm bereichern beide Straßen die Innenstadt durch charmante Manufakturen, inhabergeführte Geschäfte sowie vielfältige kulinarische Angebote und tragen wesentlich zur touristischen Attraktivität Flensburgs bei.
Hervorragende
Erreichbarkeit mit
dem Öpnv und pkw
Makrolage
Die charmante Fördestadt Flensburg mit Hafenflair, ist das einzige Oberzentrum im nördlichsten Bundesland mit fast 100.000 Einwohnern und einem Einzugsgebiet in dem rund 400.000 Menschen leben. Inzidenz der Stadt profitiert von ihrer Grenznähe zu Dänemark als Handelsregion leben Tourismus eine wichtige wirtschaftliche Rolle spielt. In der kreisfreien Stadt Flensburg wurden im Jahr 2024 rund 381.0001 Touristenübernachtungen gezählt.
Flensburg ist auch ein Bildungsstandort mit ca. 9.0002 Studierenden an der Europa-Universität, Marineschule Mürwik und Hochschule Flensburg.
Bevölkerungswachstum
bis 2040 ca. 6%
Einwohner
ca. 99.000 im Jahr 2024
Zentralitäts-kennziffer
160,8 (2024)
Einzugsgebiet
ca. 400.000 Einwohner
im deutsch-dänischen Grenzgebiet3


Einzugsgebiet
- ca. 400.000 Einwohner im Einzugsgebiet
- Oberzentrum für den Norden SH
- Stadt ca. 99.000 Einwohnern
- Zentralitätskennziffer 160,8 (2024) ⇒ deutlicher Kaufkraftzufluss
- einzelhandelsrelevante Kaufkraft: 6.933 € je Einwohner (2024)
- touristische Zusatznachfrage: ca. 212.000 Ankünfte in 2024 in der Region4/5


Hochfrequentierte
1A-Lage mit
attraktivem
Branchenmix

Ihr Ansprechpartner
Markus Hoffjan Senior Manager
Asset Management
Swiss Life Asset Managers Deutschland GmbH
Swiss Life Asset Managers ist ein führender institutioneller Immobilieninvestor in Europa. Mit unseren Projektentwicklungen realisieren wir in deutschen Metropolregionen neben ausgewählten Gewerbeobjekten Wohnungen mit den Anforderungen künftiger Generationen und schaffen so werthaltigen Raum zum Leben und Arbeiten. Unsere Leidenschaft gilt dem Bauen und geht doch weit darüber hinaus. Wir übernehmen Verantwortung, denn wir verstehen uns stets als Teil einer langfristig ausgerichteten Standortentwicklung. (Stand 30.06.2025)
11,1
Mrd. Eur Verwaltetes Immobilienvermögen
400.000
Quadratmeter Nettonutzfläche in der Entwicklung
700
Mitarbeitende In Deutschland
7
Standorte in Deutschland
Zahlen zu Swiss Life Asset Managers Deutschland; Stand 31.12.2024